
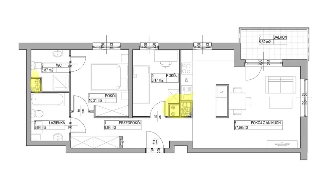
Oznaczenia budowlane na rysunku: klucz do interpretacji planów
Poznaj oznaczenia budowlane na rysunku i nauczyć się interpretować plany techniczne. Dowiedz się, jak rozumieć symbole architektoniczne i graficzne oznaczenia w projektach budowlanych.

Poznaj oznaczenia budowlane na rysunku i nauczyć się interpretować plany techniczne. Dowiedz się, jak rozumieć symbole architektoniczne i graficzne oznaczenia w projektach budowlanych.

Poznaj zalety wąskich okien pionowych w nowoczesnym budownictwie. Dowiedz się, jak poprawić doświetlenie i estetykę swojego domu dzięki temu funkcjonalnemu rozwiązaniu.

Dowiedz się, jak wykonać opaskę z keramzytu wokół domu. Skuteczna ochrona fundamentów przed wilgocią i izolacja budynku. Sprawdź zalety i instrukcję krok po kroku.

Dowiedz się, jak prawidłowo wybrać i zamontować kołki do wełny mineralnej. Poznaj rodzaje, materiały i techniki montażu dla skutecznej izolacji termicznej budynku.

Oblicz koszty budowy i zaoszczędź czas z kalkulatorem materiałów budowlanych. Precyzyjnie oszacuj wydatki, zaplanuj budżet i zoptymalizuj swój projekt budowlany lub remontowy.

Poznaj 5 skutecznych metod wykończenia sufitu betonowego. Malowanie, tynkowanie czy panele? Sprawdź, jak efektownie udekorować sufit z betonu i odmienić swoje wnętrze.

Dowiedz się, jak bezpiecznie przeprowadzić montaż więźby dachowej zimą. Poznaj skuteczne techniki zabezpieczenia konstrukcji przed mrozem i śniegiem oraz kluczowe wyzwania zimowych prac dekarskich.

Czy dysperbit sprawdzi się na mokrych bloczkach? Poznaj skuteczność i alternatywy izolacji fundamentów w trudnych warunkach. Sprawdź, jak chronić wilgotne ściany.

Poznaj zalety rynien kwadratowych PVC w nowoczesnym budownictwie. Dowiedz się o ich zastosowaniu, montażu i konserwacji. Wybierz najlepszy system rynnowy dla swojego domu.

Szukasz skupu starych desek na Podkarpaciu? Sprawdź, gdzie sprzedać drewno rozbiórkowe, stare belki czy deski ze stodół. Poznaj firmy, ceny i warunki skupu w regionie.