Jak obliczyć powierzchnię dachu dwuspadowego w 5 prostych krokach
Obliczanie dachu dwuspadowego nie musi być trudne. Dowiedz się, jak obliczyć powierzchnię dachu dwuspadowego w 5 prostych krokach. Zastosuj łatwe wzory!
Jak obliczyć powierzchnię dachu dwuspadowego w 5 prostych krokach
Obliczanie dachu dwuspadowego nie musi być trudne. Dowiedz się, jak obliczyć powierzchnię dachu dwuspadowego w 5 prostych krokach. Zastosuj łatwe wzory!
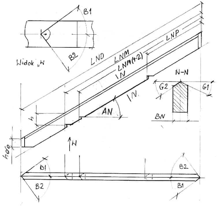
Jak obliczyć długość krokwi w dachu dwuspadowym i uniknąć błędów.
Oblicz długość krokwi w dachu dwuspadowym, wykorzystując kluczowe parametry i wzory. Dowiedz się, jak obliczyć kąt dachu i zaprojektować krokiew.