- Długość krokwi oblicza się na podstawie szerokości dachu i kąta nachylenia.
- Wzór na długość krokwi to K = (L/2) / cos(α), gdzie L to szerokość, a α to kąt w radianach.
- Kalkulatory online ułatwiają szybkie i dokładne obliczenia krokwi.
- Własny prototyp krokwi pozwala na sprawdzenie wymiarów przed produkcją całego systemu.
- Unikaj zbyt krótkich krokwi, by nie musieć łączyć ich w trakcie budowy.
Kluczowe parametry do obliczeń krokwi dachowych dla dwuspadowych
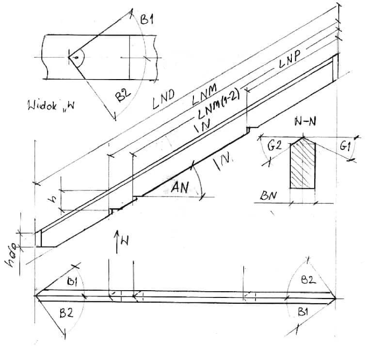
Aby skutecznie obliczyć długość krokwi dach dwuspadowy, warto zacząć od podstawowych parametrów, które mają kluczowe znaczenie dla dokładnych obliczeń. Należy uwzględnić wysokość dachu, szerokość dachu, zwis dachu oraz kąt nachylenia dachu. Zrozumienie tych pojęć pomoże w uzyskaniu właściwych wymiarów i zapewni stabilność konstrukcji.
| Parametr | Opis |
| Wysokość dachu | Odległość od poziomu podłogi strychu do kalenicy. |
| Szerokość dachu | Odległość między punktami podparcia krokwi. |
| Zwis dachu | Odległość od krawędzi ściany do krawędzi dachu. |
| Kąt nachylenia dachu | Miara kąta w stopniach, istotna dla obliczeń. |
Wysokość dachu i jej wpływ na długość krokwi
Wysokość dachu jest jednym z kluczowych aspektów, które należy wziąć pod uwagę, obliczając długość krokwi. Im wyższy dach, tym większe obciążenia i większa długość krokwi, co wpływa na cały system. Dobrze zdefiniowana wysokość dachu zapewnia równomierne rozłożenie ciężaru i stabilność konstrukcji.
To, jak wysokość dachu wpływa na długość krokwi, jest istotne także dla zrozumienia kątów nachylenia. Przy większych wysokościach kąt nachylenia może się zmieniać, co z kolei prowadzi do różnic w długościach krokwi. W praktyce, należy starannie obliczyć te parametry, aby uniknąć przyszłych problemów.
Czytaj więcej: Dom z czerwoną dachówką: jak stworzyć stylowy i trwały projekt
Szerokość dachu i jej rola w obliczeniach krokwi
Szerokość dachu, mierzona między punktami podparcia krokwi, jest kluczowym czynnikiem wpływającym na obliczenia. Długość krokwi jest bezpośrednio proporcjonalna do szerokości dachu. To ważne, aby zrozumieć, że szerokość dachu ma bezpośredni wpływ na obciążenie krokwi oraz ich stabilność.
Odpowiednia szerokość dachu pozwala na zachowanie odpowiednich wymiarów krokwi, co jest kluczowe dla bezpieczeństwa i trwałości całej struktury. Zbyt mała szerokość może prowadzić do nadmiernych naprężeń, co w efekcie może prowadzić do uszkodzeń dachu.
Zwis dachu a długość krokwi – co warto wiedzieć
Zwis dachu to odległość od krawędzi ściany do krawędzi dachu, która również ma swoje znaczenie w obliczeniach długości krokwi. Odpowiedni zwis zapobiega gromadzeniu się wody oraz chroni ściany przed wilgocią. Właściwe dobranie długości zwisu ma ogromne znaczenie dla estetyki i funkcjonalności budynku.
W obliczeniach długości krokwi uwzględnienie zwisu jest kluczowe, ponieważ wpływa na kąt nachylenia i stabilność całej konstrukcji. Niezbędne jest, aby zwis był odpowiednio obliczony, aby uniknąć problemów z wodą deszczową i zminimalizować ryzyko uszkodzeń.
Kąt nachylenia dachu i jego obliczanie krokwi
Kąt nachylenia dachu to jeden z najważniejszych parametrów przy obliczaniu długości krokwi. Dokładne obliczenie kąta nachylenia jest kluczowe dla ustalenia, jaką długość powinny mieć krokwie. Warto pamiętać, że kąt nachylenia można obliczyć, korzystając z odpowiednich wzorów matematycznych.
- Ustal szerokość dachu (L).
- Przekształć kąt nachylenia z stopni na radiany (α).
- Zastosuj wzór: K = (L/2) / cos(α).
Wzory na długość krokwi – przejrzyste przykłady
Obliczanie długości krokwi nie musi być skomplikowane. Warto znać odpowiednie wzory, które można zastosować w praktyce. Przykładem może być wzór, w którym do obliczeń wykorzystuje się szerokość dachu i kąt nachylenia. Dla kąta nachylenia 32° i rzutu poziomego 5,5 m długość krokwi wyniesie około 6,485 m, po zastosowaniu odpowiedniego mnożnika.
| Kąt nachylenia | Szerokość dachu (L) | Długość krokwi (K) |
| 32° | 5,5 m | 6,485 m |
Jak zastosować wzór na długość krokwi w praktyce
Stosowanie wzoru na długość krokwi w praktyce jest kluczowe dla bezpieczeństwa dachu. Warto przed przystąpieniem do budowy przygotować sobie wszystkie niezbędne materiały oraz narzędzia. Upewnij się, że wszystkie wymiary są dokładne, aby uniknąć nieprzyjemnych niespodzianek. Warto również wykonać prototyp krokwi, aby zweryfikować poprawność obliczeń.
Dostępność narzędzi do obliczeń krokwi – kalkulatory online
Kalkulatory online stały się nieocenionym narzędziem dla osób obliczających długość krokwi. Umożliwiają szybkie i dokładne obliczenia, co oszczędza czas i minimalizuje ryzyko błędów. Wystarczy wprowadzić dane, takie jak wysokość dachu, szerokość oraz kąt nachylenia, a kalkulator poda odpowiednie wartości.
- Oszczędność czasu na obliczenia.
- Zwiększenie dokładności wyników.
- Łatwość w użyciu i dostępność.
Praktyczne uwagi i wskazówki dotyczące krokwi
Podczas budowy krokwi warto zastosować kilka praktycznych wskazówek, aby zapewnić ich odpowiednią jakość. Przede wszystkim, wykonanie prototypu krokwi jest kluczowe, aby upewnić się, że wszystkie wymiary są poprawne. Taki krok pozwala uniknąć błędów, które mogą być kosztowne i czasochłonne do naprawienia.
Również ważne jest, aby pamiętać o bezpieczeństwie konstrukcyjnym. Właściwe dobranie wymiarów krokwi ma bezpośredni wpływ na stabilność dachu. Pamiętaj, że nawet niewielkie błędy w obliczeniach mogą prowadzić do poważnych problemów w przyszłości.
Znaczenie właściwych wymiarów krokwi w kontekście bezpieczeństwa
Właściwe wymiary krokwi są kluczowe dla bezpieczeństwa konstrukcji. Zbyt krótkie krokwie mogą prowadzić do osłabienia struktury, co w skrajnych przypadkach może skutkować jej zawaleniem. Warto zatem poświęcić czas na dokładne obliczenia oraz analizy, aby uniknąć potencjalnych zagrożeń.
- Możliwość osłabienia struktury.
- Zwiększone ryzyko uszkodzeń w przypadku silnych warunków atmosferycznych.
- Konieczność kosztownych napraw po budowie.

Najczęstsze błędy w obliczeniach długości krokwi i jak ich unikać
Podczas obliczeń długości krokwi można popełnić kilka typowych błędów, które mogą wpłynąć na jakość konstrukcji. Najczęściej spotykane to niewłaściwe przeliczenie kąta nachylenia lub błędne pomiary szerokości dachu. Dlatego tak ważne jest, aby z dużą uwagą podchodzić do każdego etapu obliczeń.
Aby uniknąć tych błędów, warto korzystać z narzędzi takich jak kalkulatory online oraz regularnie sprawdzać wprowadzone dane. Dodatkowo, przetestowanie krokwi na etapie prototypu pozwoli na wykrycie i skorygowanie wszelkich nieprawidłowości przed rozpoczęciem pełnej produkcji.
Właściwe obliczenia długości krokwi są kluczowe dla bezpieczeństwa dachu
Przy obliczaniu długości krokwi dach dwuspadowy, kluczowe jest uwzględnienie podstawowych parametrów, takich jak wysokość, szerokość, zwis oraz kąt nachylenia dachu. Każdy z nich ma bezpośredni wpływ na stabilność konstrukcji oraz bezpieczeństwo użytkowników. Na przykład, odpowiednio dobrany zwis dachu pozwala na skuteczne odprowadzanie wody, co zapobiega uszkodzeniom budynku w wyniku wilgoci.
Warto również pamiętać o znaczeniu dokładności w obliczeniach. Błędy mogą prowadzić do poważnych konsekwencji, w tym osłabienia struktury. Przykład obliczeń przedstawiony w artykule pokazuje, jak istotne jest przeliczenie kąta nachylenia oraz wykorzystanie odpowiednich wzorów, co przyczynia się do uzyskania właściwych wymiarów krokwi. Dodatkowo, korzystanie z narzędzi takich jak kalkulatory online może znacznie podnieść precyzję obliczeń i zminimalizować ryzyko błędów.
Podsumowując, właściwe wymiary krokwi oraz ich staranne obliczenie mają kluczowe znaczenie dla sukcesu całej konstrukcji dachu. Prototypy i testy przed pełną produkcją stanowią praktyczne kroki, które powinny być wdrożone, aby upewnić się co do bezpieczeństwa i funkcjonalności. Tylko przez staranność w planowaniu można osiągnąć trwałość i bezpieczeństwo dachów dwuspadowych.






