
Poznaj tradycyjny kogut z blachy na dach - ozdobny element i praktyczny wiatrowskaz. Dowiedz się, jak wybrać, zamontować i konserwować tę stylową dekorację dachową.
Nazywam się Kamil Dobrzejewski, a budownictwo to dla mnie coś więcej niż tylko praca – to prawdziwa pasja. Od najmłodszych lat fascynowało mnie, jak można tworzyć coś od podstaw, a później patrzeć, jak z marzeń powstaje rzeczywistość. Poza budową uwielbiam majsterkowanie i ciągle szukam nowych sposobów na usprawnienie procesów, które innym wydają się skomplikowane. Na blogu chcę pokazać, że budowa domu to nie tylko ciężka praca, ale też satysfakcja z każdego postawionego muru i każdej skończonej ściany. Lubię też dzielić się praktycznymi poradami, które pozwalają innym unikać błędów i cieszyć się efektami swojej pracy.

Poznaj tradycyjny kogut z blachy na dach - ozdobny element i praktyczny wiatrowskaz. Dowiedz się, jak wybrać, zamontować i konserwować tę stylową dekorację dachową.

Dowiedz się, jak prawidłowo wykonać szczelny montaż okien. Poznaj zalety, etapy i materiały stosowane w tej technice. Zbuduj energooszczędny dom z perfekcyjnie zaizolowanymi oknami.

Poznaj zalety wąskich okien pionowych w nowoczesnym budownictwie. Dowiedz się, jak poprawić doświetlenie i estetykę swojego domu dzięki temu funkcjonalnemu rozwiązaniu.

Poznaj bloczki z neoporu - innowacyjne materiały termoizolacyjne. Dowiedz się, jak zwiększają efektywność energetyczną budynków i obniżają koszty ogrzewania. Sprawdź zalety i zastosowania.

Poznaj zalety blachodachówki płaskiej z posypką. Trwałe i estetyczne pokrycie dachowe, które łączy nowoczesność z tradycyjnym wyglądem. Sprawdź, dlaczego warto wybrać to rozwiązanie!

Poznaj znaczenie kąta 10 stopni w budownictwie i jego wpływ na Twój dach. Dowiedz się, jakie zalety i wyzwania niesie takie nachylenie oraz jak wpływa na konstrukcję i trwałość.

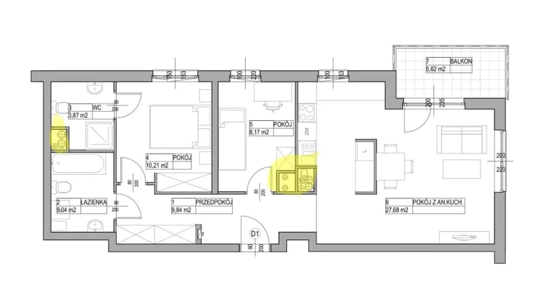
Poznaj oznaczenia budowlane na rysunku i nauczyć się interpretować plany techniczne. Dowiedz się, jak rozumieć symbole architektoniczne i graficzne oznaczenia w projektach budowlanych.

Dowiedz się, ile m3 ma tona ziemi i poznaj zaskakujące fakty o wadze gleby. Sprawdź gęstość różnych rodzajów ziemi i jak wpływa na jej objętość. Praktyczne informacje dla każdego ogrodnika.

Kolano elastyczne Galeco to kluczowy element systemu rynnowego. Poznaj jego zastosowania, zalety i sposób montażu. Sprawdź, jak usprawnić odprowadzanie wody deszczowej.

Stwórz własne ręce z betonu - krok po kroku! Poznaj proste techniki wykonania, dekorowania i pielęgnacji. Zainspiruj się i stwórz unikalne ozdoby do ogrodu lub domu.