
Ile kosztuje podniesienie dachu? Zaskakujące wydatki, które musisz znać
Sprawdź, ile kosztuje podniesienie dachu. Poznaj ceny materiałów, robocizny oraz inne wydatki, które mogą wpłynąć na koszt remontu dachu.
Nazywam się Kamil Dobrzejewski, a budownictwo to dla mnie coś więcej niż tylko praca – to prawdziwa pasja. Od najmłodszych lat fascynowało mnie, jak można tworzyć coś od podstaw, a później patrzeć, jak z marzeń powstaje rzeczywistość. Poza budową uwielbiam majsterkowanie i ciągle szukam nowych sposobów na usprawnienie procesów, które innym wydają się skomplikowane. Na blogu chcę pokazać, że budowa domu to nie tylko ciężka praca, ale też satysfakcja z każdego postawionego muru i każdej skończonej ściany. Lubię też dzielić się praktycznymi poradami, które pozwalają innym unikać błędów i cieszyć się efektami swojej pracy.

Sprawdź, ile kosztuje podniesienie dachu. Poznaj ceny materiałów, robocizny oraz inne wydatki, które mogą wpłynąć na koszt remontu dachu.

Szukasz informacji, gdzie kupić wiechę na dach? Sprawdź najlepsze miejsca, ceny wiech dachowych i porady dotyczące zakładania wiechy!

Dowiedz się, ile kosztuje położenie dachu w Polsce. Sprawdź, jakie czynniki wpływają na koszt dachu oraz jak prawidłowo zaplanować budżet na dach.

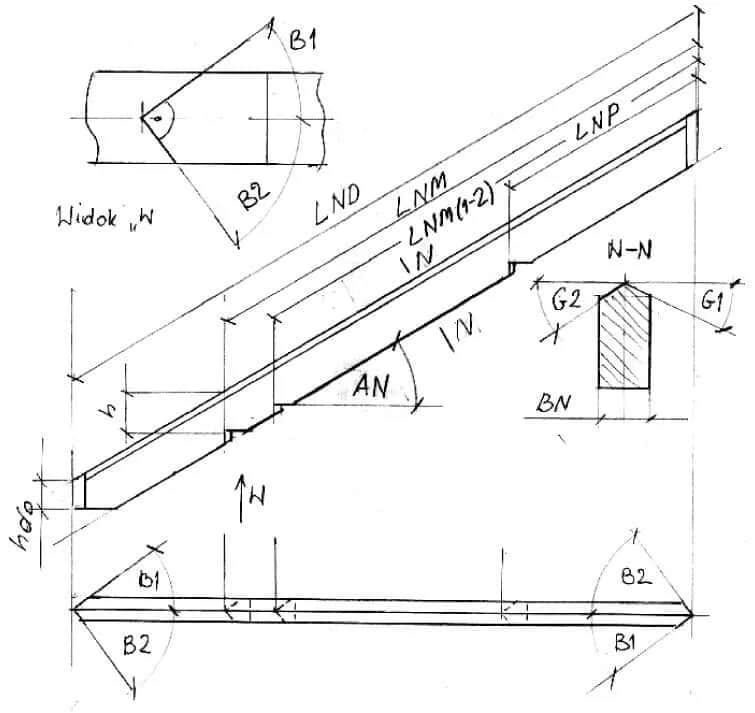
Oblicz długość krokwi w dachu dwuspadowym, wykorzystując kluczowe parametry i wzory. Dowiedz się, jak obliczyć kąt dachu i zaprojektować krokiew.

Dowiedz się, czym ocieplić dach i jakie materiały do ocieplenia dachu są najlepsze. Zyskaj wiedzę o izolacji dachu i oszczędzaj na ogrzewaniu.

Ile kosztuje dach solarny? Poznaj ceny paneli słonecznych, koszty instalacji oraz dotacje, które pomogą Ci osiągnąć oszczędności z energii słonecznej.

Zastanawiasz się, czym obłożyć komin na dachu? Poznaj najlepsze materiały, które zapewnią trwałość, estetykę oraz efektywne zabezpieczenie i wentylację.

Zastanawiasz się, jak podnieść dach bez rozbierania? Poznaj najlepsze metody i techniki, które umożliwią modernizację dachu bez demontażu.

Zastanawiasz się, co na dach wiaty? Poznaj najpopularniejsze materiały na dach, ich właściwości i zalety, aby wybrać idealne pokrycie dla swojej konstrukcji wiaty.

Naucz się, jak zaciąć krokwie na dach jednospadowy, aby zapewnić trwałość i stabilność. Praktyczne porady dotyczące cięcia krokwi i wyboru materiałów.